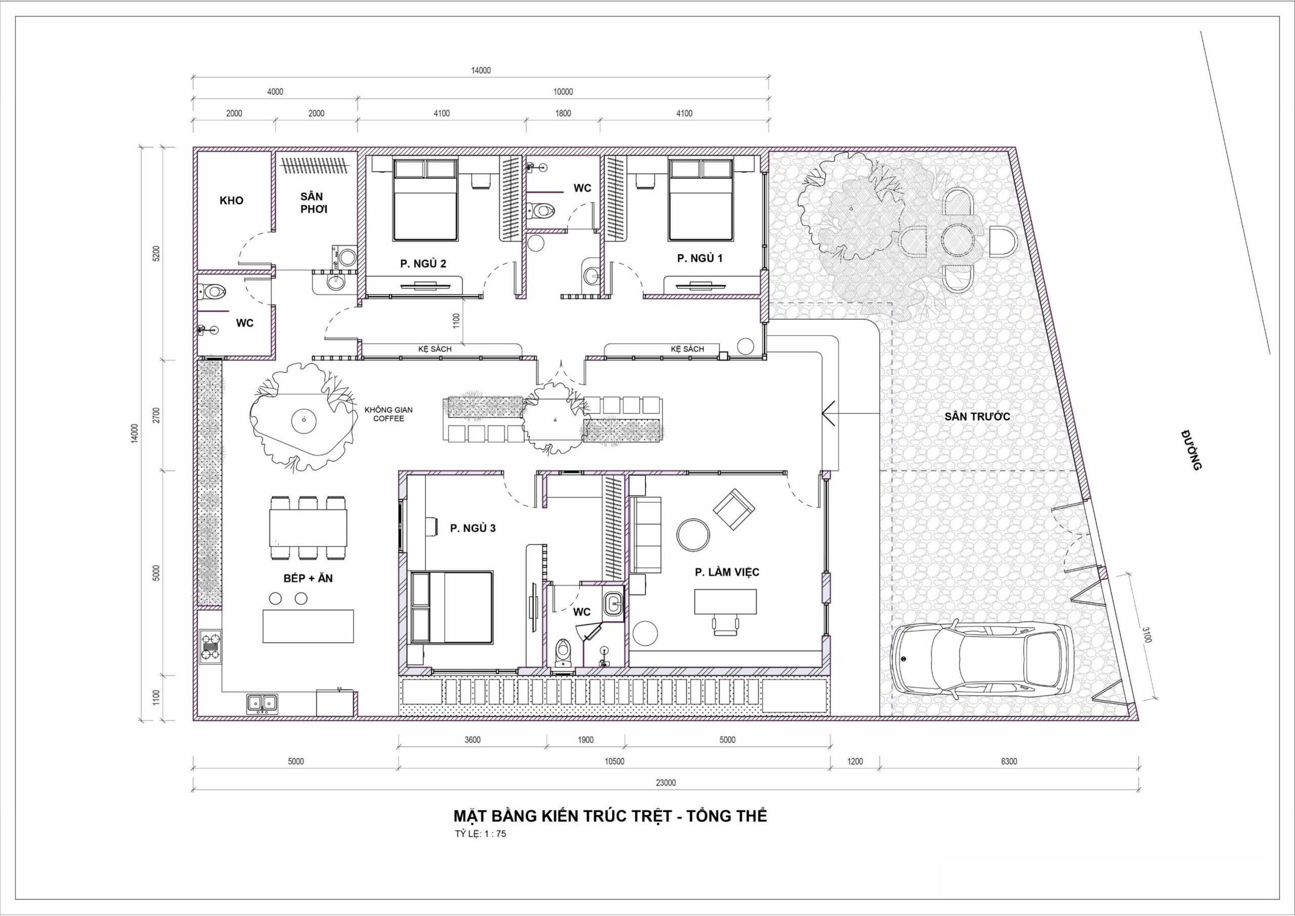
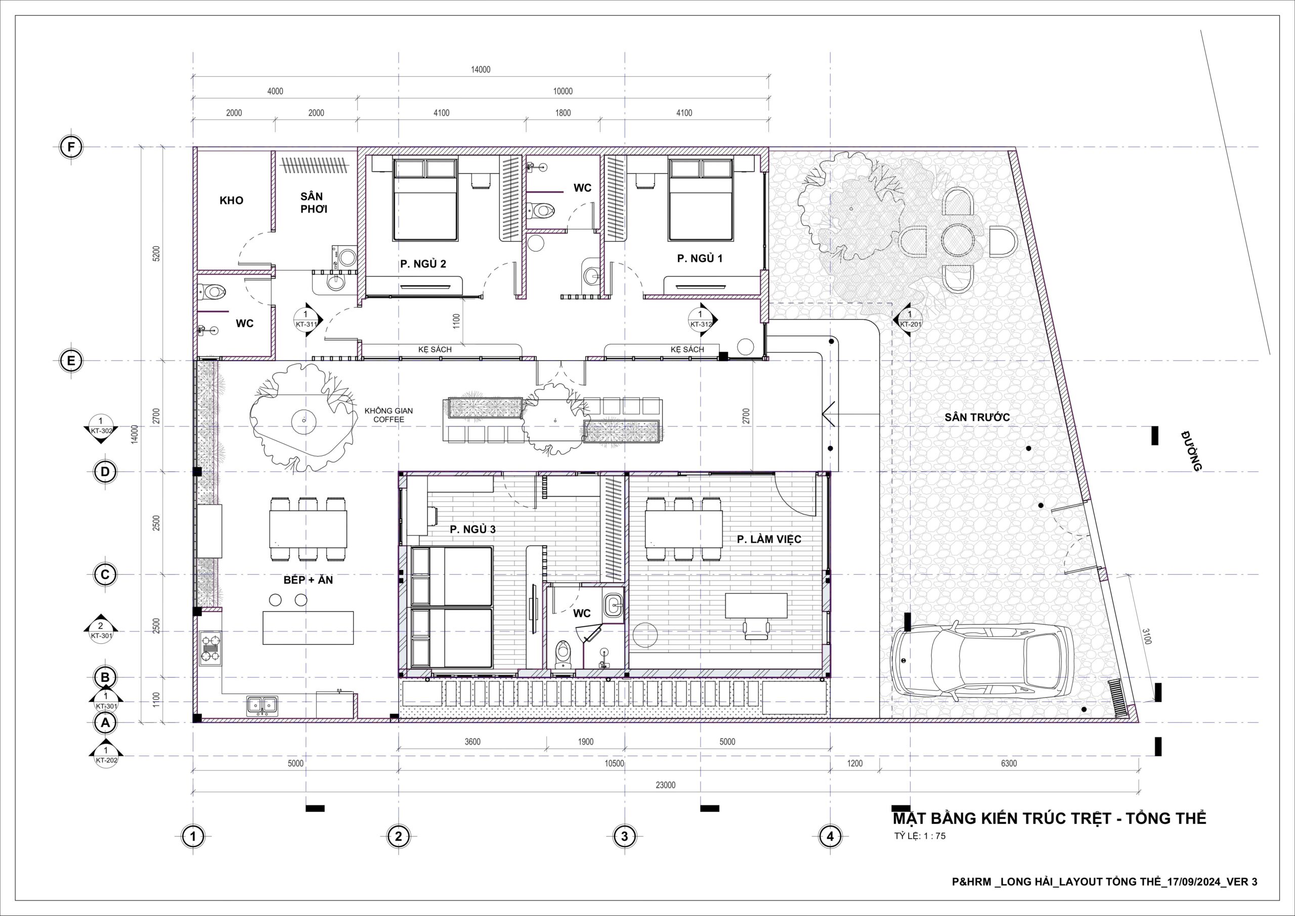
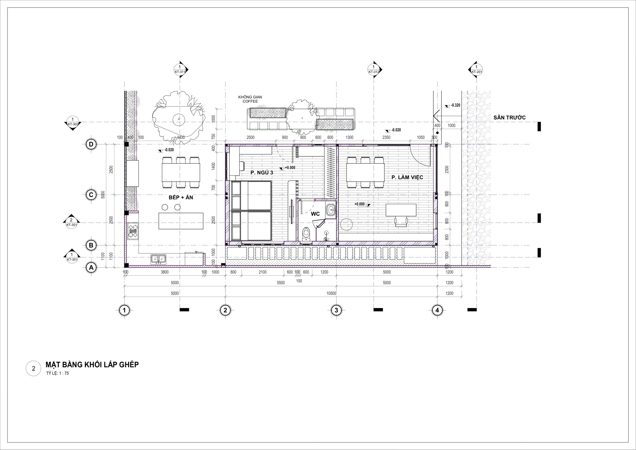
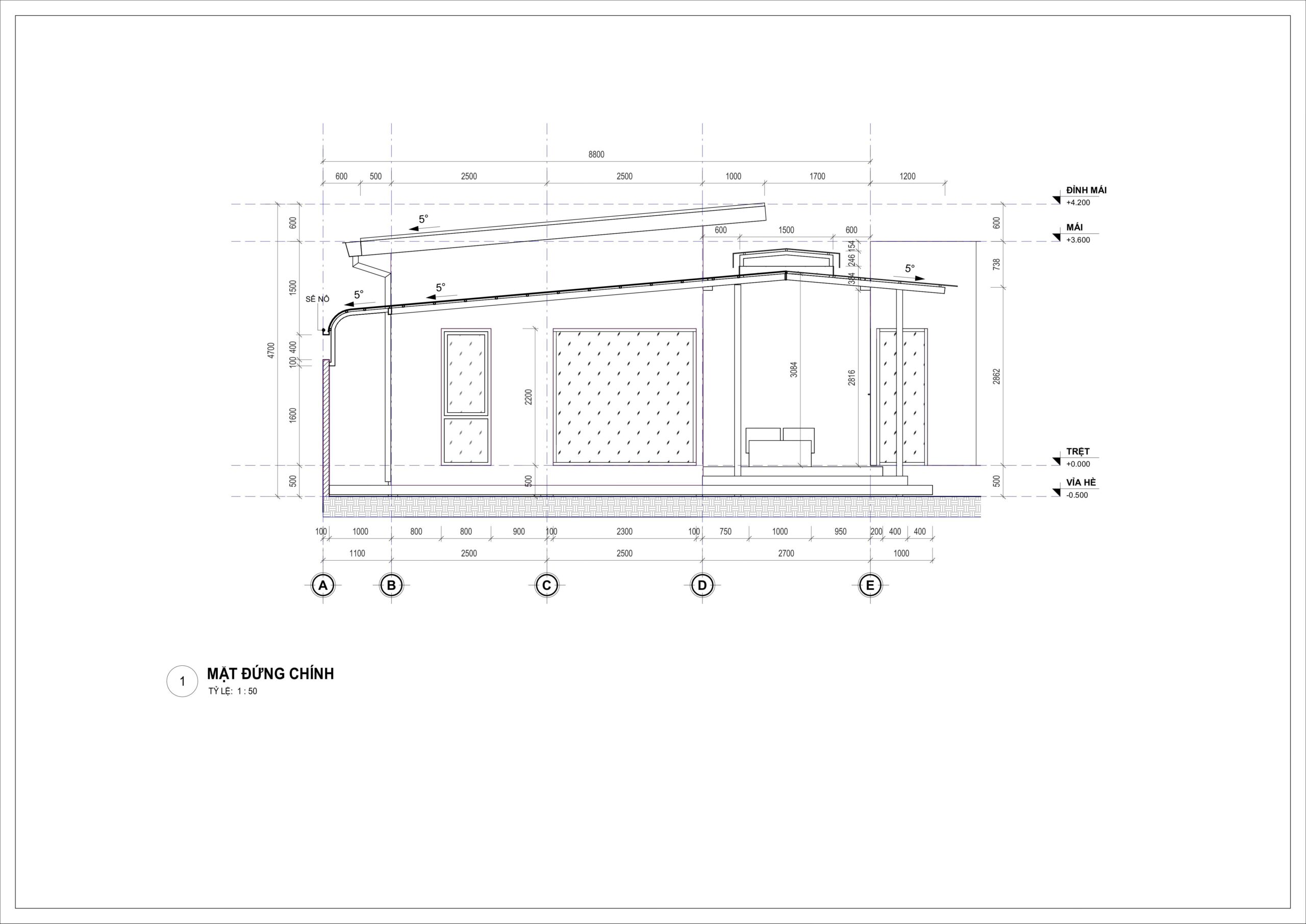
Dự án nhà ở Long Hải 322 m2

Vị trí: Location: Long Hải - Bà Rịa - Vũng Tàu
Mô tả
Description
  • Hạng mục: Tư vấn – Thiết kế, Thi công – Lắp dựng, Bảo hành – Bảo trì
Chia sẻ:Share:

Thắc mắc của bạn sẽ được giải đáp ngay chỉ sau một cái nhấp chuột

0329891879

hau@harimodule.vn

Tin tức mới nhấtLatest News
Hotline Chat Zalo Messenger Đăng ký