Dịch vụ
Dịch vụ thi công – lắp dựng mà chúng tôi cung cấp bao gồm các hoạt động liên quan đến việc lắp ráp, xây dựng và hoàn thiện các công trình như nhà ở, nhà xưởng, tòa nhà và các công trình hạ tầng khác, cụ thể là:
A. Thi công phần thô
Móng: tùy từng trường hợp cụ thể mà HRM sẽ đề xuất dùng móng kim cương hay làm móng bê tông để đảm bảo độ ổn định, chắc chắn cho công trình mà vẫn tối ưu hóa tối đa chi phí cho khách hàng.
Hệ thống cấp thoát nước: lắp đặt hệ thống thoát nước và cống để đảm bảo tính năng cấp thoát nước.
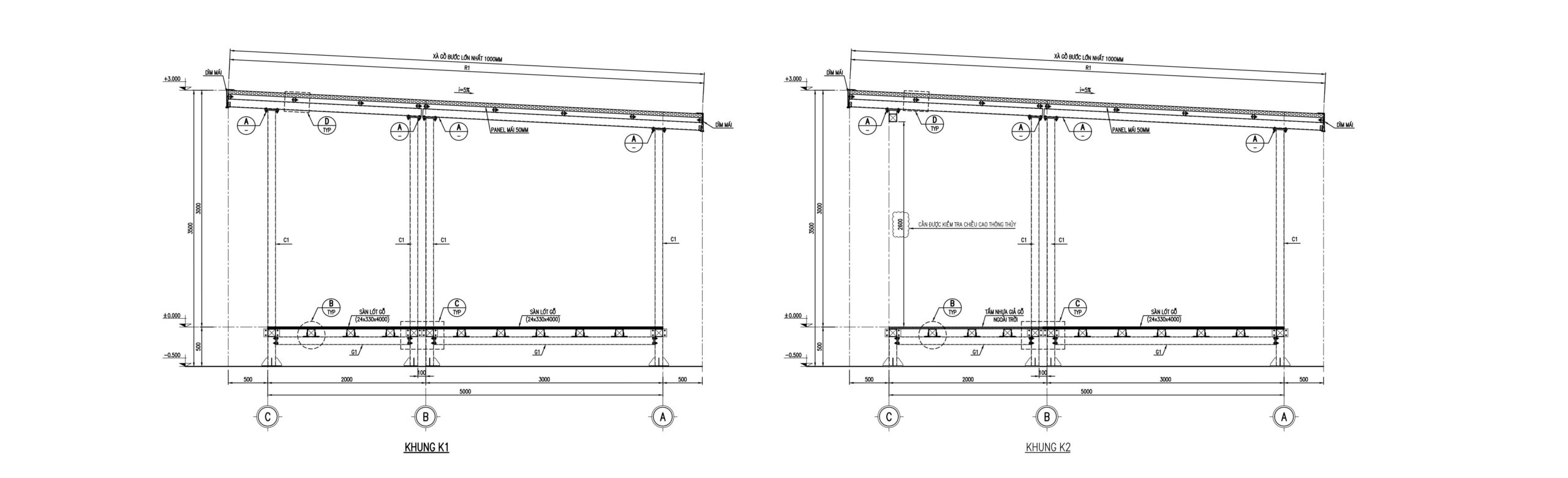
B. Lắp dựng
Kết nối các module
Lắp ghép và kết nối các phần của công trình như khung, tường, mái, hệ thống điện – nước (kể cả nội thất (nếu có)) vào sàn, nền móng và các vị trí điện, nước chờ sẵn.
C. Hoàn thiện
Kiểm tra hoàn thiện
Đánh giá toàn bộ công trình, kiểm tra tính năng và chất lượng.
Các dịch vụ khác
Dự án và tin tức
testing_170225
Dự án nhà ở tỉnh Long An, gồm có: thiết kế khảo sát hợp đồng thi công bảo trì
Dự án nhà ở 40m2
Hạng mục: Tư vấn – Thiết kế, Thi công – Lắp dựng, Bảo hành – Bảo trì
Dự án nhà ở Long Hải 322 m2
Hạng mục: Tư vấn – Thiết kế, Thi công – Lắp dựng, Bảo hành – Bảo trì




